
南寧景程酒店宴會廳餐廳裝修效果圖案例-燦源裝飾
面積:810平米
風格:現代輕奢
價格:3w
發布日期:2022-01-20
簡介
一、項目簡介:
名稱:南寧景程酒店宴會廳餐廳裝修效果圖案例;時間:2020年5月;設計報價:3w
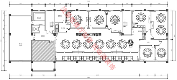
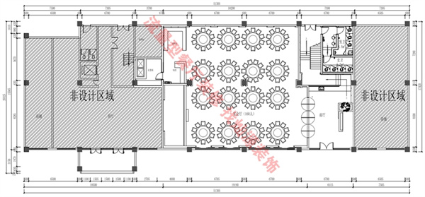
二、平面圖展示:

三、餐廳裝修效果圖展示:
廣西燦源裝飾設計工程有限公司采用1對1面對面溝通服務,定制專屬特色設計方案,在高端奢華的酒店宴會廳裝修需求的基礎上,采用亞麻色作為基礎色調,搭配飽和度較低的紅褐色作為裝飾點綴,布局在天花噴漆、桌椅布飾、包廂內飾等細節處,作為呼應,與暖黃色造型吊燈共同烘托出整體低調又不失奢華的氛圍感,滿足客戶需求。



門頭采用別具一格的“家”造型設計,搭配黑白棋盤格創意,精準表達出“賓至如歸”的客戶期許和餐廳文化;色彩上依然采用飽和度較低的暗色調,屬于視覺舒適度范圍,營造優雅有格調的餐廳品牌形象。

整套餐廳裝修效果圖設計方案,廣西燦源裝飾設計工程有限公司,是在BIM創意設計技術的基礎上,將整體空間1:1模擬還原,利用草圖方案可視化特性,在108項設計圖紙規范的嚴格要求下,根據客戶需求精準打造出包含門頭、門廳、大廳、包廂等多個區域在內共6張效果圖組圖,經動態展現實際落地效果后,贏得客戶高度好評!
廣西燦源裝飾設計工程有限公司,一家專注工裝多年,打造過超68萬平米辦公空間實際案例,覆蓋超15大類行業,實戰經驗豐富;擁有強大設計團隊,設計風格多樣,能夠滿足多種裝修設計需求,不管您是餐廳裝修效果圖,還是辦公空間設計,1對1面對面溝通,總經理、項目經理、施工員、監理、安全員、材料員、設計師6+1服務模式,只為打造更加優質舒適的裝修體驗;承諾“效果圖=實景圖”的基礎上,還能精算成本20%,真正做到質量好、服務好、價格平!南寧裝修,就找燦源裝飾!





